The First Floor

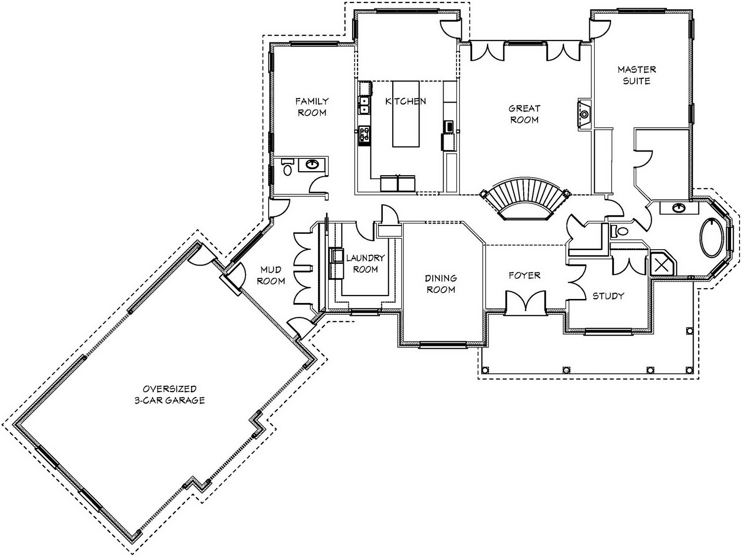
The main floor was designed to be open and bright, and to allow enjoyment of the stunning surroundings. The layout lends itself to quite relaxation or entertaining, in equal measure.

Including the Master Suite on the main floor allows for walk-out access to the generous back patio, which is bathed in morning sunlight.

Ceiling and pot lights in living spaces are operated by dimmers connected to the Control4 home automation system. The Great Room, Kitchen, Family Room, Master Bedroom and Study all include in-ceiling or in-wall speakers connected to the central Control4 audio system; the Dining Room is pre-wired and ready for speakers.

E

Entryway

E

Great Room

E

Study

E

Kitchen

E

Family Room

E

Powder Room

E

Dining Room

E

Master Suite

E

Laundry Room

E

Mud Room